A medical center designed with beauty and function in mind for the interior and the exterior, this unique small complex has become recognized as an exemplary healthcare and office building that creates a positive and supportive environment for patients and staff.
The 10,500m2 dynamic building features the following components:
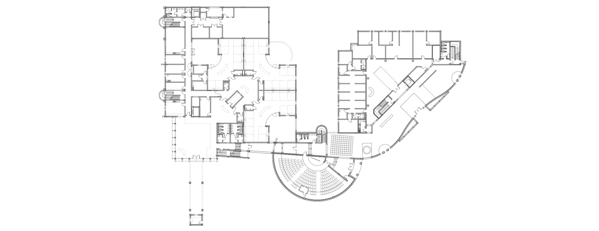
1. The SCOT Headquarters – Two floors with annexed 150 seat auditorium/multipurpose hall.
2. The Dialysis Centre for male and female patients. – Three floors.
3. The Nurses Accommodation for male and female nurses. – Two floors.
4. Ancillary buildings
5. Landscaped areas and car parks

King Salman Kidney Diseases Center – Photo © Omrania
The Headquarters building provides central administration to control the operations of the dialysis units throughout the Kingdom. The Centre is equipped with a centralized data system for all patients as well records of all donors and recipients of organs throughout the Kingdom. Among other outstanding features of the Complex are the isolation wards, the treatment system for dialysis and the requirement for special access to all areas for the handicapped.
The project was designed on a fast-track basis with a fully integrated team from the Client (ADA), the user (SCOT) and Omrania & Associates.






